
Устройство ЭВУТ–20А предназначено для поддержания температуры в заданном диапазоне в бытовых холодильных установках и торговом оборудовании. Имеет функцию управления оттайкой по временным интервалам.Основные технические характеристики Максимальные размеры корпуса 82×48×28,5 мм Напряжение питания, частота 220(± 15 %)В, 50(± 3 %)Гц Ток нагрузки в момент пуска (рабочий), не более не более 20A (4A) Диапазон установки темпертуры.Устройство поставляется в собранном виде, не требующем разборки и настройки при монтаже. Монтаж устройства производится к корпусу холодильной установки в произвольной плоскости в местах, исключающих попадание влаги и механического воздействия, через технологические отверстия, предусмотренные для крепежа.Перед монтажом устройства убедитесь, что оно и агрегат, на который осуществляется монтаж, отключены от сети. При установке устройства в изделие все провода должны быть закреплены. Крепление проводов должно быть выполнено так, чтобы оно разгружало проводники от механических напряжений, от скручивания и защищало изоляцию проводов от истирания.
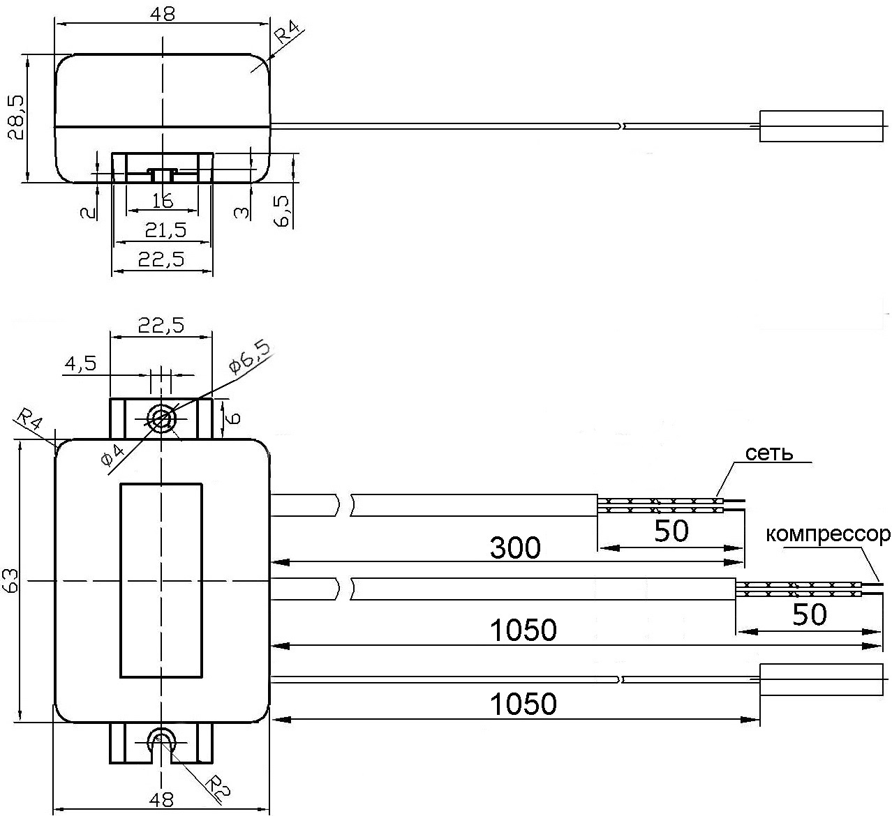
ГАБАРИТНЫЕ И УСТАНОВОЧНЫЕ РАЗМЕРЫ.

УСТАНОВКА И МОНТАЖ.
Устройство поставляется в собранном виде, не требующем разборки и настройки при монтаже. Монтаж устройства производится к корпусу холодильной установки в произвольной плоскости в местах, исключающих попадание влаги и механического воздействия, через технологические отверстия, предусмотренные для крепежа (см. рис.1).Перед монтажом устройства убедитесь, что оно и агрегат, на который осуществляется монтаж, отключены от сети. При установке устройства в изделие все провода должны быть закреплены. Крепление проводов должно быть выполнено так, чтобы оно разгружало проводники от механических напряжений, от скручивания и защищало изоляцию проводов от истирания. После монтажа, подключите устройство согласно электрической схеме (Рис.2). Проверьте качество и надёжность всех соединений, соответствие роду тока и напряжению.